ok. Jerzmanowska / Działka Budowlana

Działka (Budowlana) na sprzedaż
534 600,00 PLN , Pow. 972 m2
Drukuj ofertę
Drukuj ofertę
Typ nieruchomości:
Działka
Powierzchnia:
972 m2
Typ transakcji:
sprzedaż
Lokalizacja:
Wrocław Fabryczna , gen. Witolda Urbanowicza
Numer oferty:
785065
Cena za m2:
550,00 PLN
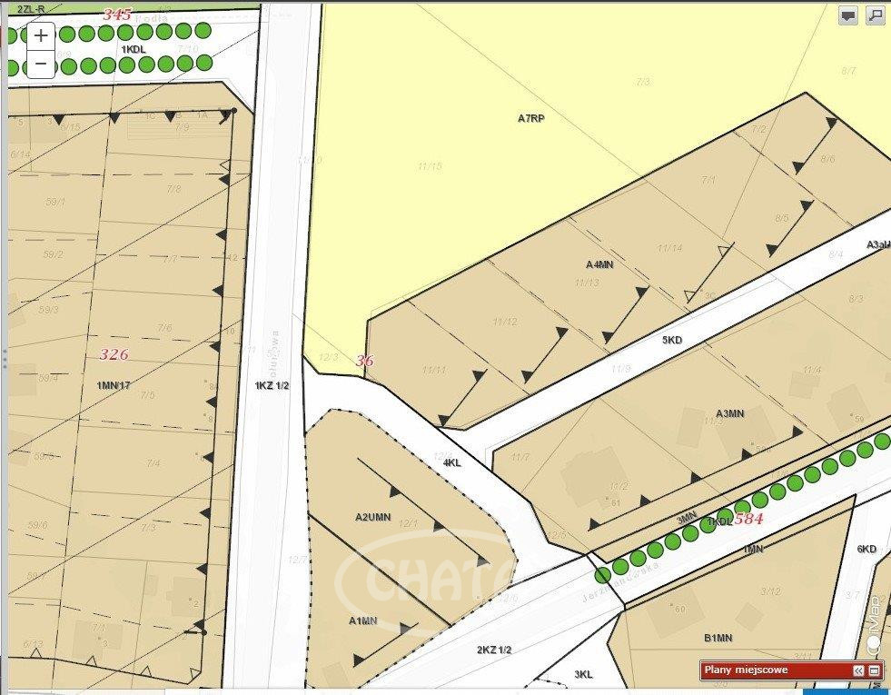
Bardzo atrakcyjna i ciekawie umiejscowiona działka budowlana o pow. 972 m2.
Położona we Wrocławiu w ok. ul. Jerzmanowskiej.

WIĘCEJ INFORMACJI POD NR TEL. 604 510 300.

Działka objęta jest miejscowym planem zagospodarowania przestrzennego obszaru zawartego między ulicami Piołunową a Osiniecką, obręb Jerzmanowo we Wrocławiu
nr 36 - uchwała nr LII/777/98 z 19.06.1998 r. 

Przeznaczenie w miejscowym planie zagospodarowania przestrzennego: 
3 zespoły zabudowy mieszkaniowej jednorodzinnej - wolnostojącej o wiejskim stylu zamieszkania 

Uzbrojenie działki: prąd - przy działce, gaz w drodze. Woda i kanalizacja przy ul. Piołunowej i Jerzmanowskiej. Dojazd utwardzony.

Dokumentacja do wglądu w biurze.

Gorąco polecam! Katarzyna Lang tel. 604 510 300.
Nieprawidłowy adres E-mail